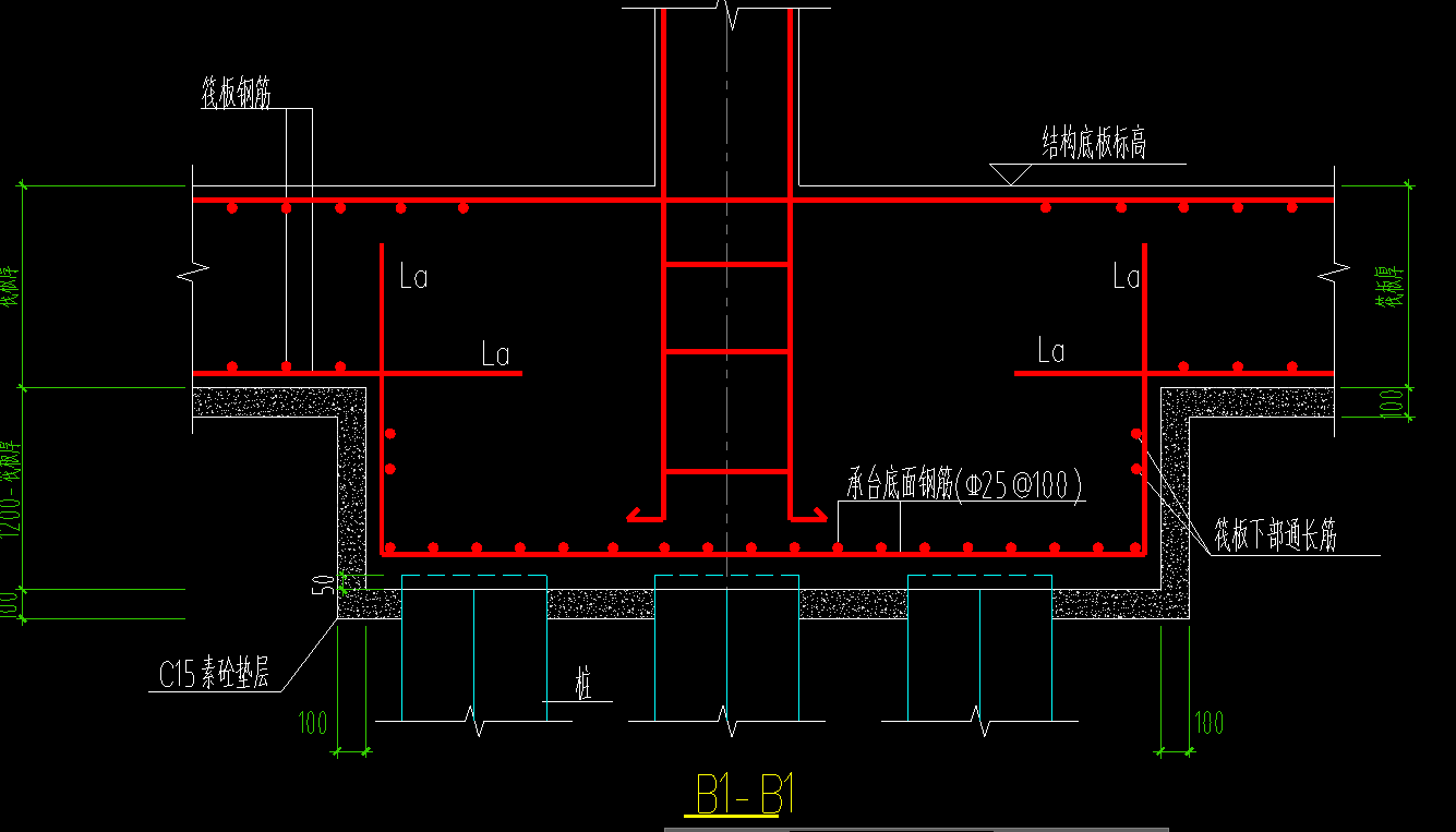
答疑:这种桩承台配筋选什么形式以及如何设置钢筋?

提问网友:11111
提问日期:2025-09-27 15:47:29

桩


解答网友:石姐

铂金专家

全部翻起

解答网友:nh

钻石专家

桩承台

0

评论0

请先
DL/T 404-2018 3.6kV~40.5kV交流金属封闭开关设备和控制设备
DL/T 404-2018 3.6kV~40.5kV交流金属封闭开关设备和控制设备
6分钟前 有人购买 去瞅瞅看
没有账号?注册  忘记密码?

社交账号快速登录

微信扫一扫关注
扫码关注后会自动登录网站