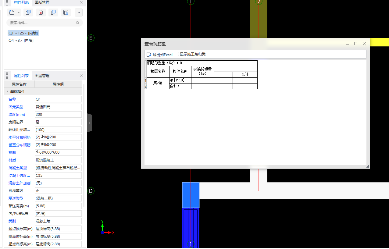
答疑:请问为什么剪力墙汇总之后没有钢筋量?

提问网友:zzz
提问日期:2025-09-24 14:12:53

剪力墙


解答网友:沭铭

专家

整体汇总试一下;再不行点击保存后关闭软件重新打开

解答网友:阿古木力

黄金专家

是不是此处画了暗柱,或者其他构件

0

评论0

请先
2023.11.29-住房城乡建设部《城市体检工作手册(试行)》
2023.11.29-住房城乡建设部《城市体检工作手册(试行)》
8分钟前 有人购买 去瞅瞅看
没有账号?注册  忘记密码?

社交账号快速登录

微信扫一扫关注
扫码关注后会自动登录网站