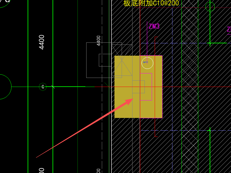
答疑:专家好,这种柱帽图纸标注只有一半,应该如何打断?

提问网友:焦健
提问日期:2025-09-23 17:30:00

图纸标注


解答网友:云中雨

黄金专家

柱帽无法打断,用承台等其他构件代替布置

解答网友:雪花飘 飘

铂金专家

是否按板边分割,选择是

0

评论0

请先
2024年版 国家电网 输变电工程通用设计 35~110kV输电线路绝缘子及金具分册
2024年版 国家电网 输变电工程通用设计 35~110kV输电线路绝缘子及金具分册
8分钟前 有人购买 去瞅瞅看
没有账号?注册  忘记密码?

社交账号快速登录

微信扫一扫关注
扫码关注后会自动登录网站