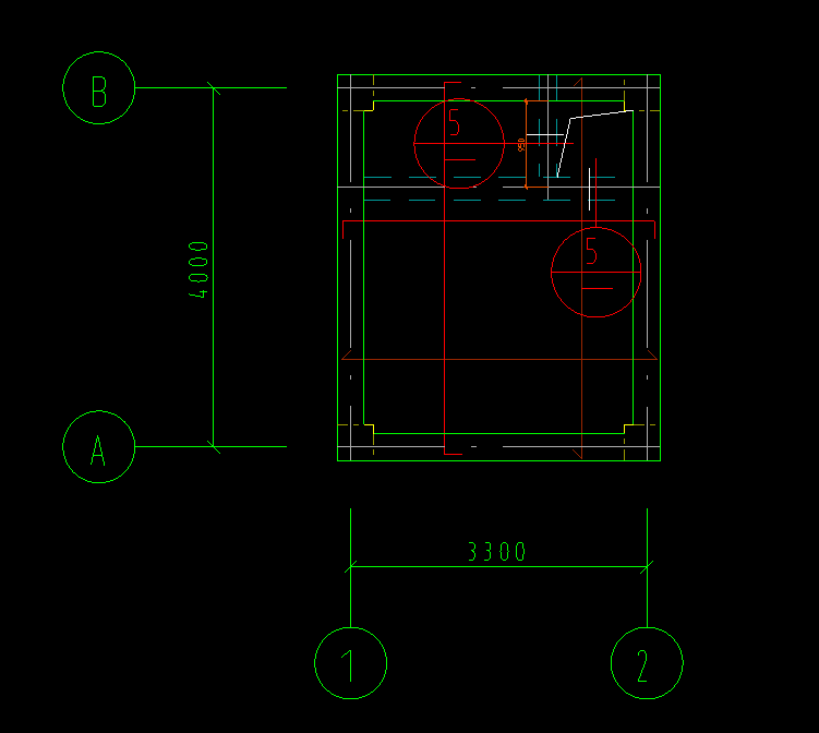
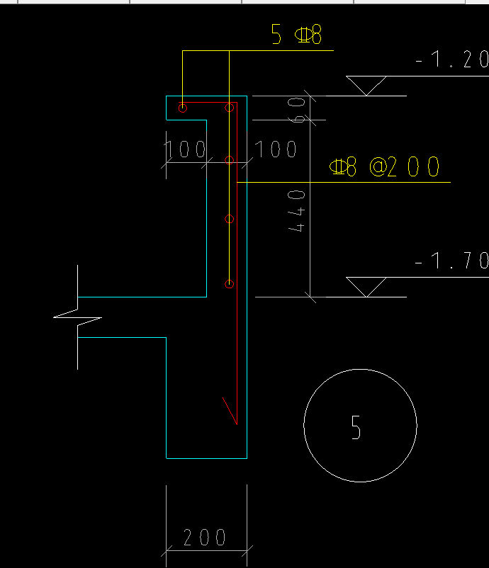
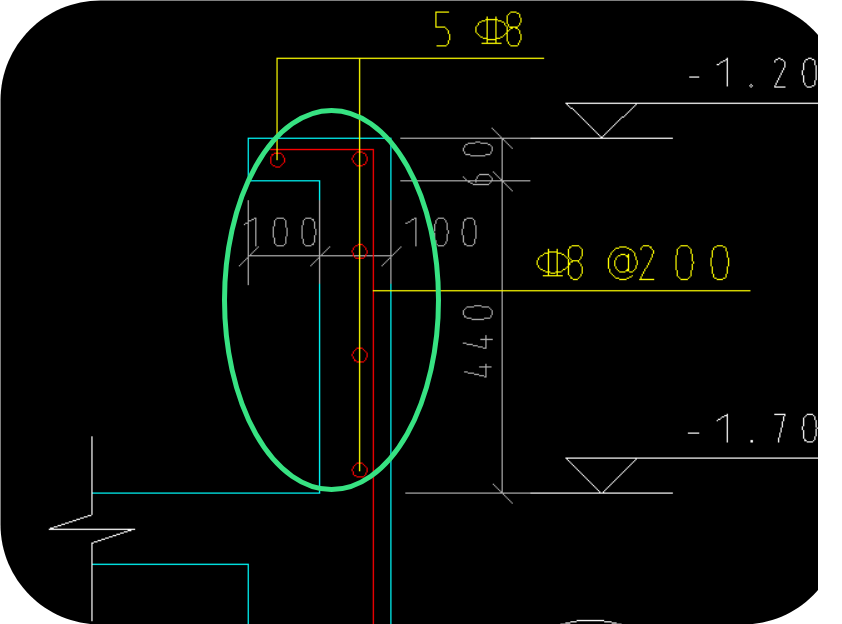
答疑:这个构件如何绘制

提问网友:456
提问日期:2025-09-23 17:34:19

构件答疑解惑


解答网友:钢筋撑起半边天

钻石专家

用栏板处理

广联达服务新干线

解答网友:云中雨

黄金专家

自定义挑檐最方便

0

评论0

请先
国家电网电定〔2023〕33号-国家电网有限公司电力建设定额站关于颁布《电缆局部放电试验补充定额》等13项企业计价依据的通知
国家电网电定〔2023〕33号-国家电网有限公司电力建设定额站关于颁布《电缆局部放电试验补充定额》等13项企业计价依据的通知
10分钟前 有人购买 去瞅瞅看
没有账号?注册  忘记密码?

社交账号快速登录

微信扫一扫关注
扫码关注后会自动登录网站