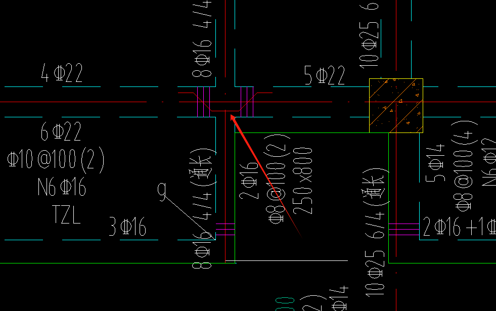
答疑:这个吊筋是什么

提问网友:汉江河堤
提问日期:2025-09-23 16:15:03

吊筋


已采纳
解答网友:星霜荏苒

钻石专家

就是主次梁相交处附加的吊筋(元宝金)

吊筋是什么

答疑解惑

解答网友:星辰大海

钻石专家

广联达服务新干线

解答网友:雪花飘 飘

铂金专家

建筑行业快速问答平台-答疑解惑

0

评论0

请先
(原书扫描)2013建设工程计价计量规范宣贯辅导.pdf
(原书扫描)2013建设工程计价计量规范宣贯辅导.pdf
刚刚 有人购买 去瞅瞅看
没有账号?注册  忘记密码?

社交账号快速登录

微信扫一扫关注
扫码关注后会自动登录网站