BIM
BIM吧
整体模型
族
其他资料
Dynamo
设计
方案
整体场景
单体模型
RHINO
施工图设计
结构
机电设计
材质渲染
D5素材
ENS素材专区
lumion素材
PS素材
规范图集
标准规范
行业图集
教程
视频
软件
Office
编程
造价
施工技术
计量计价
造价答疑
在线工具
管理
登录
注册
搜索
当前位置:
首页
造价
造价答疑
正文
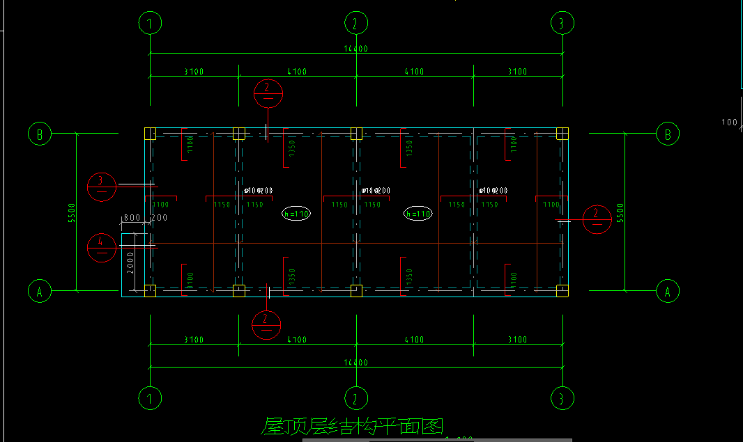
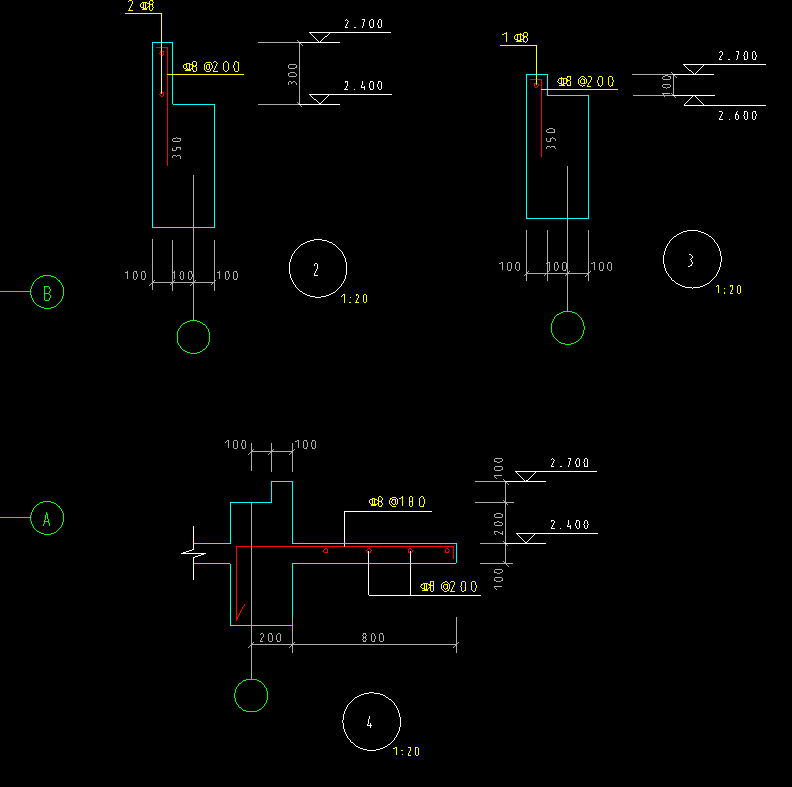
答疑:2,3,4分别是什么构件
2周前
造价答疑
2
推广
提问网友:456
提问日期:2025-09-23 11:17:16
解答网友:星霜荏苒
钻石专家
② ③是梁顶上翻;④是雨棚板
0
构件
上一篇
答疑:麻烦问一下,一个空调外机大概需要多少KG的支架
下一篇
答疑:老师们,请问一个室外消防管回填和包封的价格问题
猜你喜欢
造价答疑
答疑:造价工程师考试中,构造柱模板计算
提问网友:夜月提问日期:2025-10-05 08:22:00造价工程师考试中,构造柱模板手算,...
38秒前
0
造价答疑
答疑:墙上配电箱洞口预留
提问网友:蔡波提问日期:2025-10-05 07:13:27请问各位大师们,砌墙时预留配电箱洞...
3分钟前
0
造价答疑
答疑:为什么上面可以基础梁加腋,下面就不行?
提问网友:南通浩哥提问日期:2025-10-04 23:09:13柱,基础梁尺寸标高都一样,上面...
7分钟前
1
造价答疑
答疑:老师们,这个滑动支架应该怎么画
提问网友:老头儿提问日期:2025-10-04 22:27:53解答网友:GXZ ...
7分钟前
1
造价答疑
答疑:砌体墙问题
提问网友:欣520(男主)提问日期:2025-10-04 21:38:18问几个问题,谢谢;1、这个...
7分钟前
1
造价答疑
答疑:请问广州信息价内的铸铁管是否含外防腐?有什么相关依据
提问网友:57提问日期:2025-10-04 21:34:38请问广州信息价内的铸铁管是否含外防腐...
8分钟前
1
评论
0
请先
登录
T/CBDA 40-2020 展览陈列工程技术规程
8分钟前 有人购买
去瞅瞅看
在线客服
升级VIP
返回顶部
没有账号?
注册
忘记密码?
社交账号快速登录
已有账号?
登录
社交账号快速登录
微信扫一扫关注
扫码关注后会自动登录网站
使用其他方式登录/注册
评论0