答疑:雨水口支管深度是指哪个高度?

提问网友:111
提问日期:2025-09-22 20:46:25

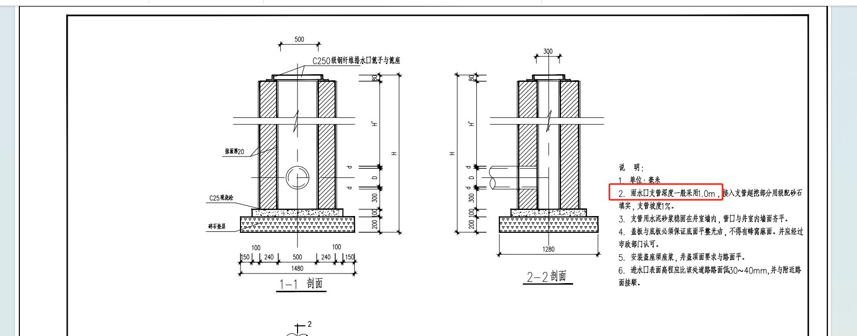
标高雨水口支管深度是指哪个高度?(是原地面高度到管内底标高吗?)


解答网友:独行者

铂金专家

看平面图,指管底标高。

0

评论0

请先
广东电网公司配网工程标准设计和典型造价(2017版)01第一册 台架变
广东电网公司配网工程标准设计和典型造价(2017版)01第一册 台架变
1分钟前 有人购买 去瞅瞅看
没有账号?注册  忘记密码?

社交账号快速登录

微信扫一扫关注
扫码关注后会自动登录网站