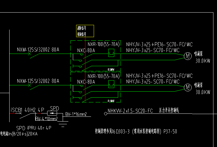
答疑:这是个什么符号,电气系统图中的,电机接触器后面的

提问网友:灰灰
提问日期:2025-09-20 16:21:19

系统图电气系统


解答网友:大家广联

钻石专家

热继电器的驱动器件

0

评论0

请先
SL/T 525.1-2023 建设项目水资源论证导则 第1部分水利水电建设项目
SL/T 525.1-2023 建设项目水资源论证导则 第1部分水利水电建设项目
3分钟前 有人购买 去瞅瞅看
没有账号?注册  忘记密码?

社交账号快速登录

微信扫一扫关注
扫码关注后会自动登录网站