提问网友:林
提问日期:2025-09-09 14:06:45
解答网友:孤心酒灌人心
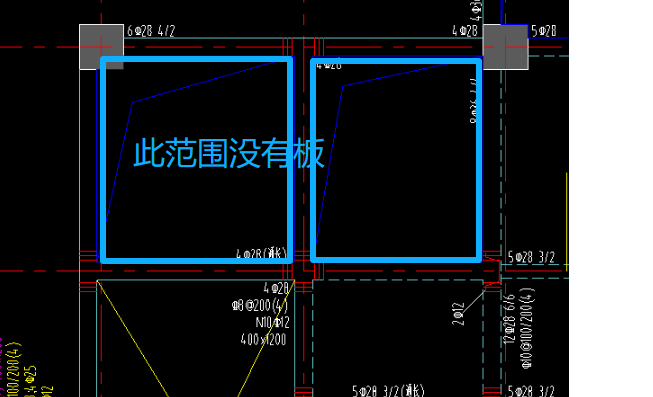
板洞

解答网友:石姐
铂金专家
一样的
也是梁
只不过是此范围没有板
是空
解答网友:钢筋撑起半边天
钻石专家
梁的内边线,此处洞口标注
解答网友:星霜荏苒
钻石专家
深蓝色折线表示上空,该位置没有板; 深蓝色边线就是正常周围梁的边线
提问网友:林
提问日期:2025-09-09 14:06:45
解答网友:孤心酒灌人心
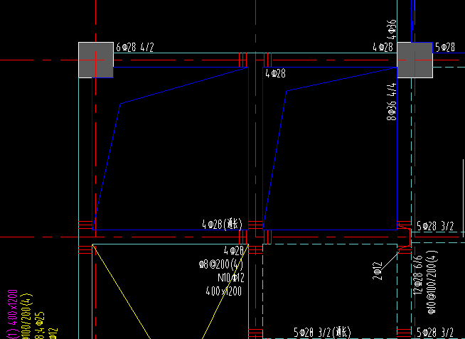
板洞

解答网友:石姐
铂金专家
一样的
也是梁
只不过是此范围没有板
是空
解答网友:钢筋撑起半边天
钻石专家
梁的内边线,此处洞口标注
解答网友:星霜荏苒
钻石专家
深蓝色折线表示上空,该位置没有板; 深蓝色边线就是正常周围梁的边线
评论0