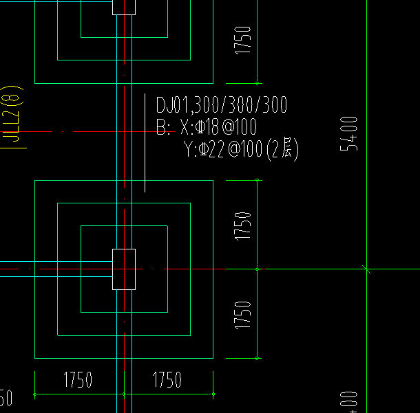
答疑:独基钢筋 图中钢筋代表什么意思 (2)只有X向是双层吗

提问网友:HH
提问日期:2025-09-09 13:48:58

独基


解答网友:星辰大海

钻石专家

只有Y向是双层

解答网友:钢筋撑起半边天

钻石专家

建议咨询一下设计人员,不好说

0

评论0

请先
QGDW-10381.1-2024-输变电工程施工图设计内容深度规定第1部分:110(66)kV变电站
QGDW-10381.1-2024-输变电工程施工图设计内容深度规定第1部分:110(66)kV变电站
刚刚 有人购买 去瞅瞅看
没有账号?注册  忘记密码?

社交账号快速登录

微信扫一扫关注
扫码关注后会自动登录网站