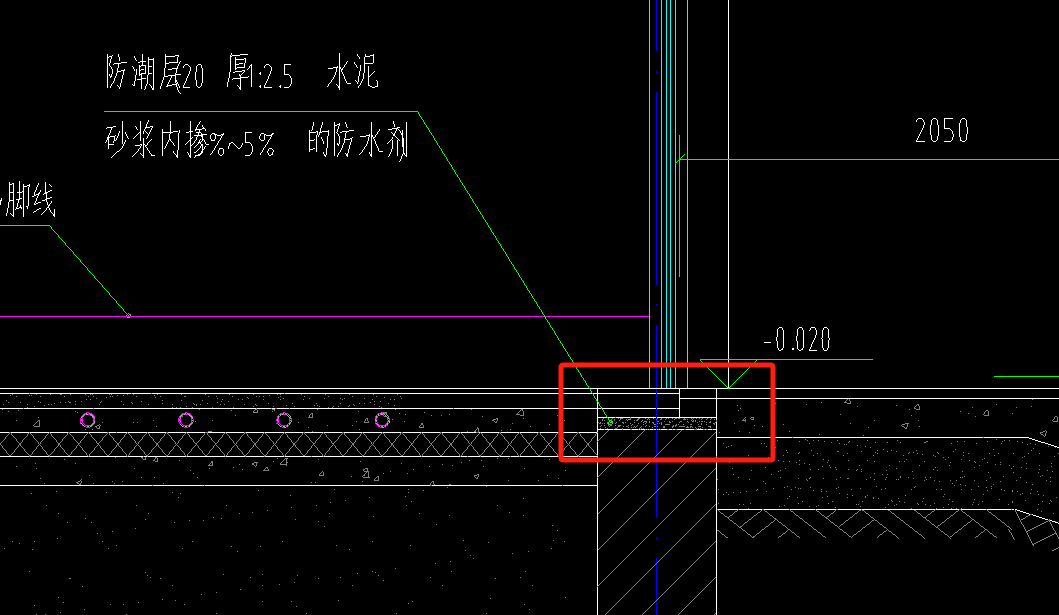
答疑:请问墙体-0.05处做墙身防潮层,是内外墙都计算吗,是用内墙长度*墙宽吗?

提问网友:西西
提问日期:2025-09-09 13:48:27

内墙长度墙身

2025-09-09 13:59:57 补充

是计算水平防潮层吗下面大样?答疑解惑


解答网友:星霜荏苒

钻石专家

是的

解答网友:孤心酒灌人心

看下图纸说明,没有说明的话应该只是外墙做即可,计算面积=墙体中心线*墙厚;是的

0

评论0

请先
QGDW 11250.2-2025 中压开关技术规范 第2部分:环网柜(箱)
QGDW 11250.2-2025 中压开关技术规范 第2部分:环网柜(箱)
3分钟前 有人购买 去瞅瞅看
没有账号?注册  忘记密码?

社交账号快速登录

微信扫一扫关注
扫码关注后会自动登录网站