BIM
BIM吧
整体模型
族
其他资料
Dynamo
设计
方案
整体场景
单体模型
RHINO
施工图设计
结构
机电设计
材质渲染
D5素材
ENS素材专区
lumion素材
PS素材
规范图集
标准规范
行业图集
教程
视频
软件
Office
编程
造价
施工技术
计量计价
造价答疑
在线工具
管理
登录
注册
搜索
当前位置:
首页
造价
造价答疑
正文
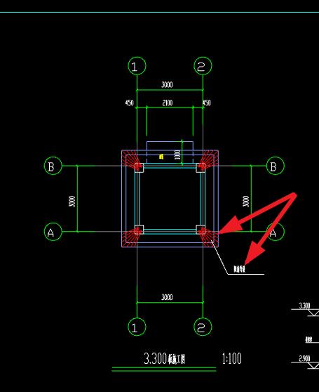
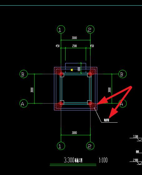
答疑:这个阳角均设怎么设置
2025-09-21
造价答疑
9
推广
提问网友:小胖子
提问日期:2025-09-09 09:42:23
解答网友:雪花飘 飘
铂金专家
表格计算
0
上一篇
答疑:合同清单工程量是否调整?关于工程量偏差是否需要给建设单位发函确认如何调整?
下一篇
答疑:老师们!请问侧面构造筋输在这对么?
猜你喜欢
造价答疑
答疑:在钢筋翻样软件中这样的洞口加筋如何布置
提问网友:胡树彬提问日期:2025-11-22 20:38:35解答网友:GXZ ...
1天前
2
造价答疑
答疑:河北12定额解释说明
提问网友:yg53@gcwce提问日期:2025-11-22 20:39:59求河北12定额解释说明,986395...
1天前
2
造价答疑
答疑:请教一下各位老师这种暗柱在广联达中怎么设置?谢谢了
提问网友:造价小白提问日期:2025-11-22 21:13:33已采纳解答网友:钢筋撑起半边天...
1天前
2
造价答疑
答疑:房间面积计算,房间内有墙体,请问墙体占地面积要扣除嘛?
提问网友:JJJ提问日期:2025-11-22 21:24:05请问一下各位老师,要扣除的话,有相...
1天前
3
造价答疑
答疑:我想问要是工程量清单描述与设计图纸不一致影响大吗
提问网友:诺诺提问日期:2025-11-22 21:38:38项目已经招标,并开工了,现在工程快...
1天前
2
造价答疑
答疑:请问老师:北京2021消耗量定额中材料检试验费含在哪里?
提问网友:侯新华提问日期:2025-11-22 21:43:21解答网友:胡老师 ...
1天前
4
评论
0
请先
登录
QGDW 12395-2024 电缆及附件生产制造过程碳排放评价技术导则
8分钟前 有人购买
去瞅瞅看
在线客服
升级VIP
返回顶部
没有账号?
注册
忘记密码?
社交账号快速登录
已有账号?
登录
社交账号快速登录
微信扫一扫关注
扫码关注后会自动登录网站
使用其他方式登录/注册
评论0