提问网友:小鱼干
提问日期:2025-09-09 09:02:34
2025-09-09 09:03:14 补充

解答网友:孤心酒灌人心
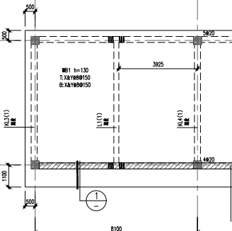
1不属女儿墙,属于梁
解答网友:GXZ
钻石专家
是斜屋面板,采用三点定义斜板方式调整形成斜屋面
解答网友:雪莲
铂金专家
是悬挑板
解答网友:星霜荏苒
钻石专家
不是女儿墙,是梁和斜板
提问网友:小鱼干
提问日期:2025-09-09 09:02:34
2025-09-09 09:03:14 补充

解答网友:孤心酒灌人心
1不属女儿墙,属于梁
解答网友:GXZ
钻石专家
是斜屋面板,采用三点定义斜板方式调整形成斜屋面
解答网友:雪莲
铂金专家
是悬挑板
解答网友:星霜荏苒
钻石专家
不是女儿墙,是梁和斜板
评论0