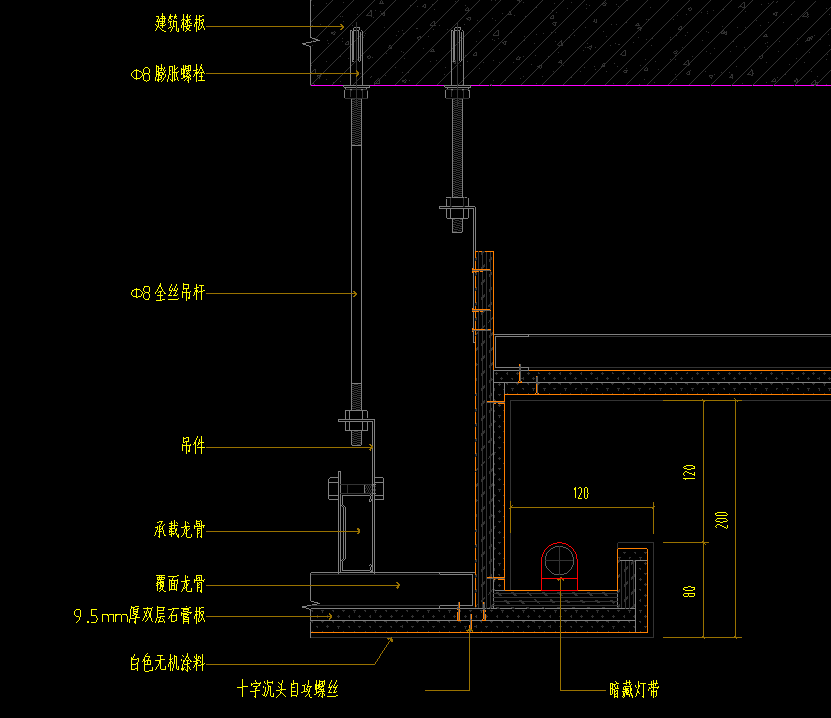
答疑:石膏板灯槽是哪段呢

提问网友:l
提问日期:2025-09-09 08:39:28

灯槽石膏板


解答网友:GXZ

钻石专家

上面截图显示是没有灯槽,下面的截图并不是上面截图的部位

0

评论0

请先
Q/GDW 10270-2017 220kV 及 110(66)kV 输变电工程可行性 研究内容深度规定.pdf
Q/GDW 10270-2017 220kV 及 110(66)kV 输变电工程可行性 研究内容深度规定.pdf
9分钟前 有人购买 去瞅瞅看
没有账号?注册  忘记密码?

社交账号快速登录

微信扫一扫关注
扫码关注后会自动登录网站