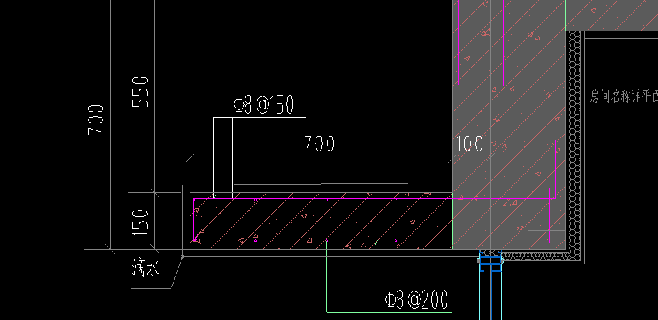
答疑:请问这个用异性挑檐怎么画钢筋,能否给出具体方法

提问网友:半只橘
提问日期:2025-09-08 09:55:03

挑檐


已采纳
解答网友:星辰大海

钻石专家

檐

解答网友:天涯浪子

铂金专家

现浇板绘制

解答网友:河畔晨光

黄金专家

在其他钢筋中设置

解答网友:雪花飘 飘

铂金专家

答疑解惑

解答网友:星霜荏苒

钻石专家

用现浇板画就行,双向布置 底筋、面筋

0

评论0

请先
通桥(2017)2101-II时速160公里客货共线铁路预制后张法简支T梁(钢横梁人行道方案)24m
通桥(2017)2101-II时速160公里客货共线铁路预制后张法简支T梁(钢横梁人行道方案)24m
5分钟前 有人购买 去瞅瞅看
没有账号?注册  忘记密码?

社交账号快速登录

微信扫一扫关注
扫码关注后会自动登录网站