提问网友:@………$
提问日期:2025-05-01 10:08:49


解答网友:大家广联
钻石专家
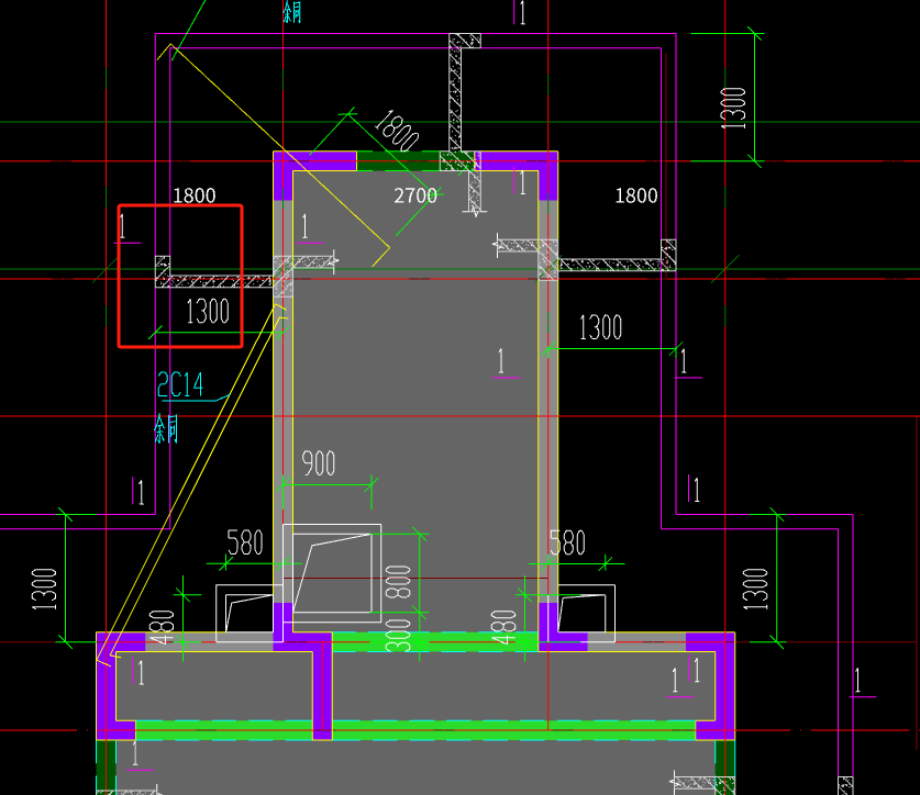
当前这个位置的梁板剖面图,梁向上的是上返梁,板不一样高的是升降板
解答网友:崔琼雯
白银专家
梁板剖面
解答网友:雪花飘 飘
铂金专家
剖面示意,梁板底平
提问网友:@………$
提问日期:2025-05-01 10:08:49


解答网友:大家广联
钻石专家
当前这个位置的梁板剖面图,梁向上的是上返梁,板不一样高的是升降板
解答网友:崔琼雯
白银专家
梁板剖面
解答网友:雪花飘 飘
铂金专家
剖面示意,梁板底平
评论0