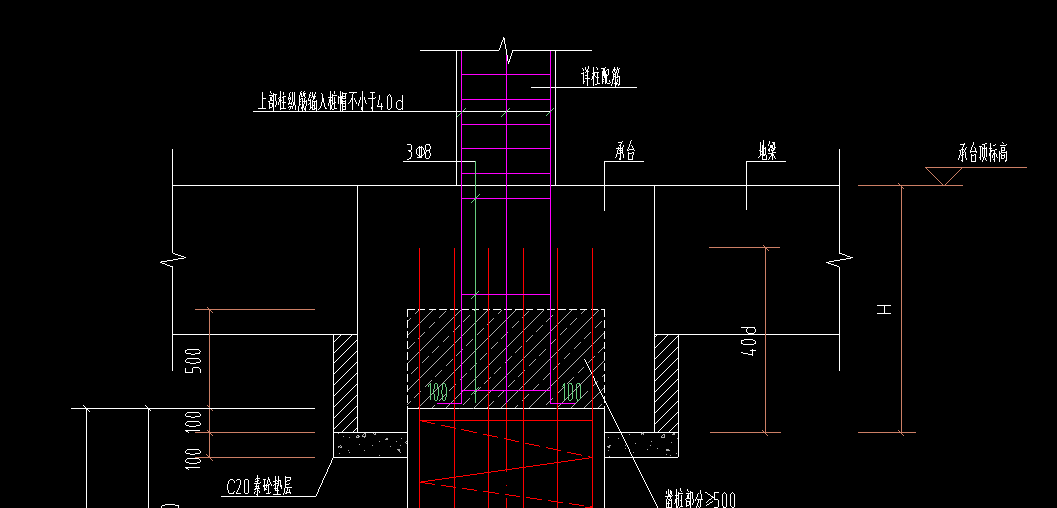
答疑:这里地梁的垫层该多出去多少还是怎么样谢谢老师来教学下

提问网友:冷热水
提问日期:2025-01-14 09:32:54

地梁垫层


解答网友:Dracarys

需要看设计说明 一般为100

解答网友:奔跑吧!建筑人!

黄金专家

按照每边100mm

解答网友:一杯红酒

黄金专家

左右出边100,起点、终点可以输入0

解答网友:云中雨

你这里的垫层是出承台边100

解答网友:冯福连

钻石专家

需要把砖胎膜的尺寸加上

解答网友:香香草莓糖

承台外边线+砖胎膜=垫层边界

0

评论0

请先
《2024版建设工程工程量清单计价标准应用指南》-2024清单编制组-最权威配套用书-xycost.com
《2024版建设工程工程量清单计价标准应用指南》-2024清单编制组-最权威配套用书-xycost.com
10分钟前 有人购买 去瞅瞅看
没有账号?注册  忘记密码?

社交账号快速登录

微信扫一扫关注
扫码关注后会自动登录网站