Revit这么改颜色?如何修改Revit背景颜色

    1、打开revit2016,界面显示为白色。

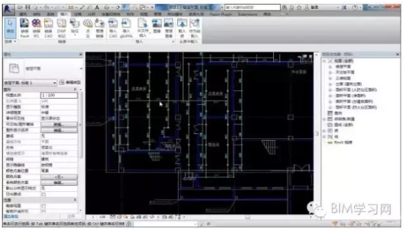
    2、修改背景,点击菜单栏中的选项按钮——图形——颜色背景(白色变为黑色)。

    3、2014版里面选项——图形——颜色里面没有背景——点击反转背景色

    4、改变背景后的结果

0

评论0

请先
DLT_5219-2023_架空输电线路基础设计规程(正式版)及 DL/T5219-2014架空输电线路基础设计技术规程(附条文说明).pdf
DLT_5219-2023_架空输电线路基础设计规程(正式版)及 DL/T5219-2014架空输电线路基础设计技术规程(附条文说明).pdf
9分钟前 有人购买 去瞅瞅看
没有账号?注册  忘记密码?

社交账号快速登录

微信扫一扫关注
扫码关注后会自动登录网站