Revit的范围框(SCOPEBOX)在平面视图开启的情况下:视图-创建-范围框
在普通中小项目里,不是必须使用范围框这个功能。
设计师偶尔想试着用一下,发现它并不是想象中那样,常常不了了之。
有时候还嫌弃别人做好的“绿盒子”,给统统删掉了(小心被扁)。
但当一个项目中需要在大量平面里设定统一的视图裁剪,一个个编辑裁剪区域边界线,即便可以复制粘贴边界草图,也是一个非常浪费时间的过程。
随项目进展,如果这个裁剪边界需要改变的话,所有之前的编辑工作又得重新经历一次……
△编辑平面裁剪区域
这时候使用范围框就会简单很多,包括遇到裁剪范围修改的时候,使用范围框也会事半功倍。
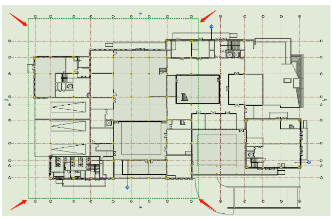
我们在平面视图里创建范围框(绿色虚线),范围框有高度,在三维视图里可以看一个绿盒子。
与这个绿盒子相交的平面视图内都可以看到这个范围框。
在这些平面中应用范围框即可达到统一裁剪的目的。范围框具有更高的视图裁剪权限,这时候“裁剪视图”选项会被冻结。
除视图以外,轴网和标高也可以被范围框裁剪,此功能可以批量对齐轴网和标高的三维边界,使之在视图中整齐划一。
在平面构件非正交的项目里,应用旋转后的范围框还可以便捷的旋转视图方向。
上述这些是我们最常用到的范围框功能。
范围框还有其它一些用法,比如它对参考面的影响类似于轴网和标高;
范围框属性里的“视图可见”编辑,
可以控制应用了这个范围框的轴网、标高和参考面在某个视图里的显隐;
三维视图也可以应用范围框等等。
大家可以慢慢探索。
l
l
l












 
                 
                 
                

评论0