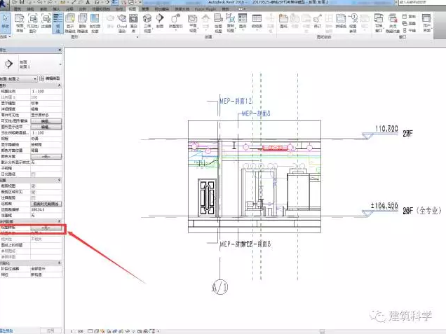
使用revit的朋友们都体会过,当我们使用剖面命令进入剖面视图的时候,出现如下问题:
1.视图比例,详细程度,视觉样式不是自己所需要的
2.出现其他的剖面视图符号,影响视图效果
3.由于模型链接,标高重叠
4.建模使用的参照平面依旧存在
那么该如何处理这些问题?
将视图比例,详细程度,视觉样式设置为自己所需要的
使用VV命令,进入“注释类别”,将“剖面”与“参照平面”的勾号去掉
使用VV命令,点击“revit链接”选项,进行“自定义”处理,将链接的revit模型中的“注释类别”——“标高”前面的勾号去掉。
实现以下剖面效果
点击“视图”——“视图样板”——“从当前视图创建样板”
创建“剖面视图样板”,在视图属性中勾选所需选项
进入新的剖面视图
大家可以发现,新的剖面视图依旧混乱,如上图所示,点击“视图样板”
应用“剖面视图样板”,则新剖面无需重复设置,就达到较好的剖面效果
















评论0