更改导入dwg图纸显示顺序
平常我们工作中有时需要把dwg图纸导入revit中做参考,然而有时它是改在模型上方,有时却是在模型下方,我们怎么根据需要调整呢?
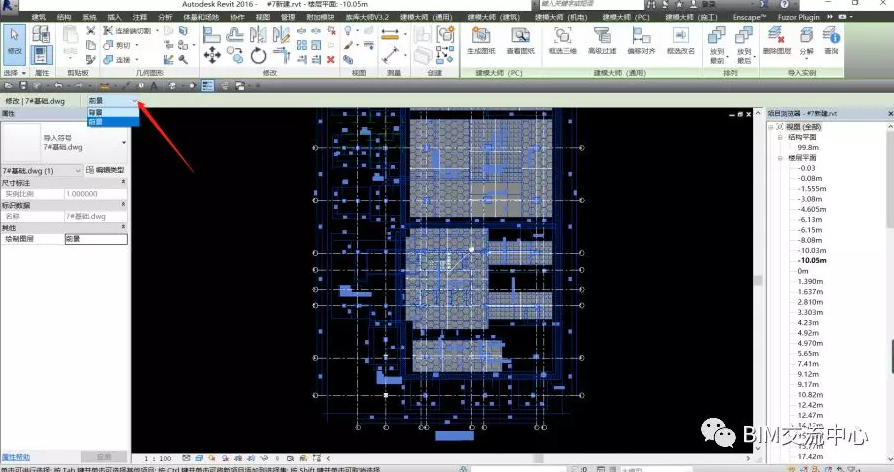
1.导入图纸时,要设置勾选“仅当前视图”,只有这样设置,才能实现图纸与模型上下顺序调整;
2.导入之后,选中图纸,即可在选项栏调整图纸顺序了。
1.导入图纸时要注意仅当前视图;
2.另外颜色选择保留,导入单位选择毫米,定位选择中心对中心(看个人使用情况可自行设定);
3.保留图纸颜色导入,revit本身白底看不清,可点击左上角软件图标,找到选项,点击图形、颜色,选择合适的颜色。





评论0